15 de julio de 2019

Publicada la licitación para la construcción del colegio de Infantil y Primaria de Ituren

La inversión asciende a 2,2 millones de euros, IVA incluído
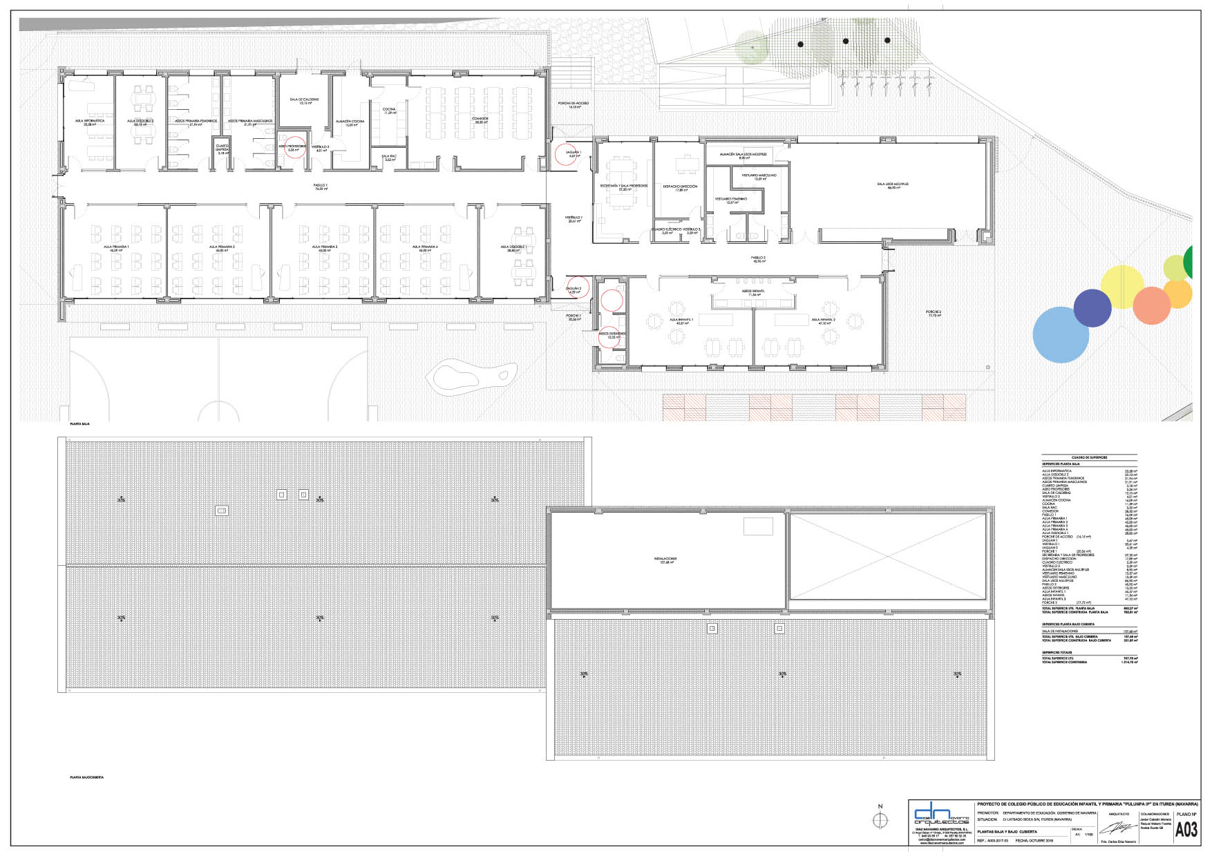
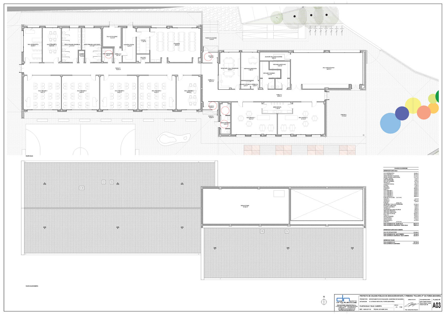
Plano del Colegio Público de Ituren. 
Plano del Colegio Público de Ituren.   Descargar imagen Ver galería de imágenes

El Departamento de Educación ha publicado hoy en el Portal de Contratación del Gobierno de Navarra las bases que regulan la licitación para hacerse con las obras de construcción del que será el nuevo colegio de Infantil y Primaria en Ituren. Las obras se han presupuestado en 2,2 millones de euros.

El Departamento de Educación construirá en Ituren un nuevo colegio público de Infantil y Primaria, con capacidad para seis unidades y comedor, ya que se considera que el edificio del Ayuntamiento donde se imparten las clases no reúne las condiciones necesarias para desarrollar la actividad docente.

La inversión para la construcción del nuevo centro, de consumo energético casi nulo y que se denominará “Pulunpa”, es de 2.235.910,87 euros, y las obras comenzarán a lo largo de 2019 y finalizarán en primavera del 2020. El plazo de ejecución de las obras se ha fijado en un máximo de nueves meses, con lo que el Departamento de Educación garantiza su puesta en funcionamiento antes del curso 20-21. El plazo para la presentación de solicitudes de participación u ofertas estará abierto hasta el 19 de agosto.

Educación ya aprobó el expediente para la contratación de la redacción del proyecto y la dirección de las obras de construcción por un total de 93.000 euros. Posteriormente se publicó la licitación de construcción del nuevo edificio pero quedó desierto, por lo que hoy mismo se ha vuelto a publicar con un aumento del presupuesto de ejecución.

El edificio actual se remodeló en 1989 y acoge a 67 alumnos y alumnas de Infantil y Primaria distribuidos en seis grupos. Este colegio se encuentra en dos plantas elevadas del edificio del Ayuntamiento y comparte acceso con las dependencias municipales. Además, la distribución interior de las aulas no responde a un uso educativo, además de tener barreras arquitectónicas que dificultan el acceso y el buen funcionamiento del centro educativo.

El anuncio de licitación se puede consultar en el Portal de Contratación.